实验室系统工程所含项目:家具规划、装修、给排水、强弱电、空调、通风、洁净、供气、纯水、消防、避雷、环保、污水处理、尾气处理(注:家具规划需考虑其它因素)。
实验室家具是实验室实验用操作台,包括通风柜、中央台、边台、试剂柜、仪器柜、更衣柜、实验柜、药品柜、实验台、天平台、保护罩 等。按材质分类包括全钢、全木、钢木、铝木等类型。台面可使用千思板、威盛亚等理化板,也可使用陶瓷板或环氧树酯板,以达到耐酸、碱,耐磨等特性实验室家具。
禄米实验室家具的款式
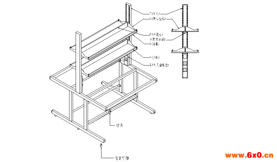
1,,一般由台面+C型钢架+柜体3个独立部位构成,可随意拆卸、互换、组合、能恰到好处地适应工作的流程,符合实验室现代化及人性化的要求。边台的标注尺寸一般为750D(包括小于750的尺寸)为基准,统称沿米,1沿米的意思就是:1000W*750D*850H的实验台,而家具的整体承重力不低于250KG/m²。以下分段说明C(H)-frame结构3个独立部位的材质。
台面:
环氧树脂板:一般为美国进口,品牌:杜抗 ,主要为加强型环氧树脂成份,有平滑而安全的弧型收边,是模具一体成型的化学台面板。内外材质一致,损伤时可修复还原。具卓越的耐酸碱、而撞击、耐高温(约800℃)能力。 厚度:13~25mm(一般普通的厚度为15mm)
实芯理化板:优质多重夹纸,由添加特殊成份酚醛树脂含浸的牛皮纸、白色及特殊表层纸经高温、高压处理而成型,并经表面特殊耐蚀处理。具有耐酸碱、耐撞击、耐热特性,经济而耐用。一般品牌有:美国威盛亚,上海威盛亚,厚度;13~25mm(12.7毫米、15毫米、20毫米、25毫米),价格优惠的品牌一般为富美家(我司常用国产品牌)
TRESPA(千思板):成分为70%的木质纤维,30%的三聚氰胺树脂,采用双电子束扫描技术将三聚氰胺附贴在面层,经高温高压成型。厚度;13~20mm,一般为荷兰进口。
COMPACT普通抗倍特,通常用到通风柜的导流板上,很少用到台面。
钢架:
我们公司采用的标准C型钢架是由40*60*1.5的钢管焊接而成;(见下图)
柜体:
木制柜体:柜身为三聚氰胺板材质,PVC封边,柜门为高密度中钎板,柜门的拉手一般为一字型的扣手、U型的不锈钢拉手。
钢制柜体:整体材质为冷轧钢板1.0厚折弯而成,表面为EPOXY环氧树脂粉末静电喷涂处理,我们公司有大型的数控折弯机器,所以产品外观漂亮。
所以,一般C(H)-frame结构的试验台分为两种,一种是吊木(钢架+木制柜体),一种是吊钢(钢架+钢制柜体),试验台一般的高度为850mm,所以我们的柜体一般高度为600mm。以下为一份C-frame钢木结构的示意图。
普通型C-frame实验台材质说明 | ||||
序号 | 部件名称 | 原材料 | 规格 | 备注 |
A | C型钢架 | 冷扎钢板折弯磷化环氧喷涂 | 40×60×δ1.2mm以上 | 负载300kg/㎡,保荷24h,卸荷后挠度与长度比值应≤0.4%;柜边下垂量≤10mm |
B | 横撑(前) | 冷扎钢板折弯磷化环氧喷涂 | 40×60×δ1.2mm以上 | 边台1条横撑、中央台2条横撑(钢管环氧喷涂) |
横撑(后) | 冷扎钢板折弯磷化环氧喷涂 | 40×40×δ2.0mm以上 | 边台2条横撑、中央台4条横撑(角钢环氧喷涂) | |
C | 悬柜挂钩 | 冷扎钢板折弯磷化环氧喷涂 | δ1.2mm以上 | 为保证强度,不得使用角码连接 |
D | 堵头 | 注塑 |
|
|
E | 可调节脚 | PP |
| 承重、防潮、防滑、抑菌、耐腐蚀 |


F | 立柱 | 冷扎钢板折弯磷化环氧喷涂 | 30×100×δ1.2mm以上 | 磨具成型调节孔;试剂架玻璃层板根据舒适要求连续逐级可调,且不会因为重压而出现突然滑落的危险 |
G | 层板挂钩 | 冷扎钢板折弯磷化环氧喷涂 | δ1.5mm以上 |
|
H | 中隔板 | 清玻璃 | 10mm | 四周磨边倒角光滑车边处理 |
I | 层板加强 | 冷扎钢板折弯磷化环氧喷涂 | 20×30×δ1.2以上 | 保证层板强度,承重100Kg/㎡ |
J | 层板 | 冷扎钢板折弯磷化环氧喷涂 | 12mm | 层板高度连续可调节 |
K | 护栏 | 不锈钢管 | ф12mm | 防止试剂瓶跌落 |
L | 立式插座盒 | 冷扎钢板折弯磷化环氧喷涂 | δ1.0mm以上 | 采用乳白色220V/10A或16A万用二、三插电插座,适用各种国产或进口仪器插头,安全耐用 |

1, 全钢落地结构,一般由台面+落地钢制柜体2个独立部位构成(其外观可以参照办公室的两张边台,嘿嘿)。全钢落地结构带试剂架的情况,基本上与C(H)-frame结构相似。
① 钢制落地柜体的基材为1.0/1.2厚的冷轧钢板折弯而成,其表面经过磷化、酸洗、经过EPOXY环氧树脂粉末静电喷涂处理。耐酸碱、耐高温、承重性能好,外型美观,使用寿命长。
② 台面:(与上一致)
二,通风柜
通风柜是实验室中最常用的一种局部排风设备,种类繁多,由于其结构不同,使用的条件不同,其排风效果也不相同。通风柜的性能好环,主要取决于通过通风柜空气移动的速度。通风柜的结构是上下式,其顶部有排气孔,可安装风机。上柜中有导流板,电路控制触摸开关,电源插座等 ,透视窗采用钢化玻璃,可左右或上下移动,供人操作。 下柜采用实验边台样式,上面有台面,下面是柜体,台面可安装小水杯和龙头。
通风柜的材料由多种的,全钢、钢木、全木结构等,其台面是直接与操作者接触的地方,可以由实芯理化板、不锈钢板、环氧树脂、陶瓷等材料造成。
一般通风柜的尺寸为:1200W*800D*2350H,1500W*800D*2350H,1800W*800D*2350H
① 标准型通风柜:比较普遍的通风柜,没有特殊要求的情况下使用
② 补风型排毒柜:设立了内置(外置)补风系统的排毒柜,当通风柜设置于采暖或对温湿度有控制要求房间时,或者当外界补风量不足时,为节省采暖,空调能耗,采用从室外取补给风在柜内循环后排出室外的方式称为补风式通风柜,它可以通过外部和内部补风。
③ 无管道排毒柜:顾名思义,是没有管道排风的设计,所以安装费用极低,无管道式的排毒柜设有低空气流速警报装置,但运行状态时没什么声音,噪音小于60d(B)A,能耗低。缺点是,通风效果不佳,所以使用的范围比较小(客户资金少的情况下)。
④ 蒸馏型排毒柜:内部配置固定实验架及蒸馏的装置。一般通风柜里面放置电炉仪器的时候使用,作用是做实验时夹蒸馏玻璃管。(一般根据客户要求定制)
⑤ 框架式排毒柜:一般可以理解为桌上型抽风罩。也可以是钢木结构的排毒柜,使用的范围比较多(客户资金少的情况下,或者是实验室里已经有边台、中央台,而台面上做的实验需要排风效果的情况下,可单独增加桌上型抽风罩)。
⑥ 落地式排毒柜:没有操作台面的通风柜,一般有比较重的,需要小推车才能搬运的仪器的情况下使用。
⑦ 联体式排毒柜:两个或者两个以上的排毒柜并联在一起使用,适用于内部空间要求大及大型仪器操作时使用。
三,高柜,就是实验室里面装药品、试剂管、样品、气瓶、更衣之类用的柜子,与普通文件柜的性质相差无疑。比较容易理解。
| |||||
序号 | 部件名称 | 原材料 | 规格 | 备注 | |
1 | 柜身 | 优质三聚氢氨板 | 18mm | 可见边PVC防水封边 | |
2 | 门板 | 优质高密度板 | 16mm | 三边厚PVC防水封边,一边薄PVC防水封边 | |
3 | 内凹扣手 | 磨具成型塑料内凹扣手或合金亚光拉手 | 塑料内凹扣手为长条型 | 专用模具成型 | |
4 | 铰链 | 优质105°自闭式铰链 |
| 与柜体面水平角度<15度时,柜门即可自行关闭;侧板螺丝孔预埋膨胀螺母,确保铰链经久开关仍不会松动甚至脱落 | |
5 | 不锈钢卡圈 | 哑光不锈钢板折弯成型抛光 | 材料厚度2.0mm以上 | 内置套锁式以便固定钢瓶 | |
6 | 垫板 | 冷轧钢板折弯酸洗磷化环氧喷涂 | 材料厚度2.0mm以上 | 翻推式垫板方便钢瓶装卸,门板设百叶补风口,便于柜体内外空气流通 | |
7 | Compact冲孔层板 | 框架采用16*16mm方形铝合金型材,并由连插件连接;内嵌4mm厚冲孔灰色Compact;高度活动可调节 |
| 防潮、抑菌、耐腐蚀 | |
8 | 不锈钢装水托盘 | 哑光不锈钢板折弯成型抛光 | 材料厚度1.0mm以上 | 用于接盛残水,利于柜体保持清洁干燥 | |
9 | 耐腐蚀阶梯层板 | 中密度纤维板贴优质灰色耐腐蚀PP板 | 材料厚度1.0mm以上 | 防潮、抑菌、耐腐蚀;阶梯式层板可存放高度不一的药瓶,方便取放物体;活动式层板可自由拆卸或调整高度 | |
10 | 固定层板 | 优质三聚氢氨板 | 18mm | 可见边PVC防水封边 | |

四,科学规划、人性化的设计
中央台与边台最小宽度为1.2米
Ø 中央台与中央台走道宽度为1.5米,最小1.3米
Ø 中央台与药品柜的走道宽度为1.2米
Ø 排毒柜与中央台最小建议空间:1.8米






QQ交流群

