一、常规实验室通道规划的一般要求:
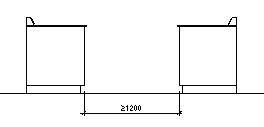
1.中央台与边台间过道的最小距离为1.2米
2.中央台与中央台间过道的最小距离为1.5米 

3.中央台与高柜间过道的最小距离为1米

4 .中央台面对墙时的宽度不宜小于1米

5.两边台间走道的最小距离为1.2米

6.两座位间的走道不宜小于1.5米

7.座位与中央台的间距不宜小于2米

8.通风柜面对墙时的走道为1.8米

9.通风柜与实验台对放的最小距离为1.8米

10.两台通风柜对放的建议间距为3米

二、通风柜的排气及配管:
1. 一台为一系列是好的配置,但管道支数多,难以处理,图例如下:

2.同一层为一系列是较理想的配置方式,图例如下:

3.全体为一系列是拼成数台做排气者,但必须避免相互影响,图例如下:

三 、设计特点:
1.整体性强:    a) 实验室家俱根据房间的尺寸及房型来布局,形成一整体的感官效果。
    b) 进排水管道距离地面 300mm,距离墙面100mm,均设在柜体背板后的空位里(中央台水电的位置设在两排柜体间的空位里),这可使实验室的外观干净整洁。图例如下:

2 c) 电源设置在离地
电源设置在离地 一米的墙面上,若实验台设有试剂架,可根据试剂架的间距合理安排电源位置,这样既美观又有利于操作 ~2.科学性、合理性强:
a) 实验室的设置考虑到他的具体用途及装备的规格。
b) 高柜、试剂架的摆放考虑到房间的采光效果、实用性。
c) 通风药品柜与通风柜并排摆放,考虑到通风管道设置的便利。
3.美观性:
a) 在考察了解当前欧美流行的实验室的色彩与搭配的基础上,结合我国实验室的色彩特色,采用具有个性化的配色风格。
b) 独特快捷的安装技术,打开柜门无安装痕迹,美观大方



                                            
                                            
                                            
                                            


QQ交流群

